Interior Architecture
Paragon Mills "What Cheer Market"
2018
Paragon Mills - What Cheer Market
With the Paragon Mills Project, my goal was to control the natural features of the abandoned mill building and integrate aspects of utility with spectacle.

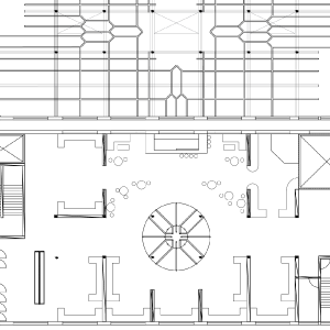
AutoCAD drawing of the elevation, ceiling plan, two floor plans, and a section of the Paragon Mills design plan for my “What Cheer” public market design in Providence, RI.
The two-level Paragon Mills in Providence, RI takes on a new life in this design for a public market that is simultaneously a Farmers Market on the bottom level and Antique Flea Market on the top.
A large freight elevator with a garage door entrance streamlines loading and unloading of furniture or crates of produce. The pedestrian entrances in the middle of the structure are also garage openings.
The mill building is beautifully lit by three large skylights and many wall height windows on both levels. I also added a large bathroom space on both levels as well as rest areas with lounge seating, a cafe, and a performance stage on the second floor.